Building plot For Sale   |   Lynn Road, Wisbech, Cambridgeshire, PE13 3EE   |   Offers in Excess of £400,000

Key Features

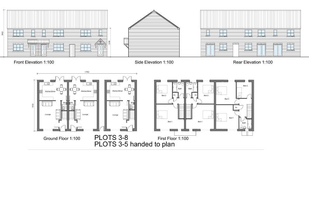
  • FULL PLANNING for 8 dwellings!
  • Planning ref: F/YR25/0609/F
  • 2x 3 bed detached house
  • 2x 3 bed terraced house
  • 4x 2 bed terraced house
  • Land is approx 0.8 ACRE (sts)
  • Main services understood to be available
  • Walking distance to town centre and park
  • No chain

Summary

FANTASTIC DEVELOPMENT WAITING TO BE BUILT.....! On offer is this land that has FULL PLANNING PERMISSION to erect 8 x dwellings involving the demolition of existing buildings (Planning ref: F/YR25/0609/F).

The land is a a great size approximately 0.8 acres (sts) & the properties will be nicely spaced out with room for 2 parking spaces for each home.

The plans include two 3-bedroom detached houses, two 3-bedroom terraced houses, and four 2-bedroom terraced houses.

We understand main services are understood to be available for connection.

The location is fantastic, with access just off Lynn Road in Wisbech. It"s within walking distance of the town centre, plenty of amenities, and the lovely Wisbech Park.

Get in touch with us today for more details or to set up a site visit.

Additional Information

For further information on this property please call 01945 408007 or e-mail info@aspire-homes.com

Contact Us

The Boathouse Business Centre, 1 Harbour Square, Wisbech, Cambs, PE13 3BH

01945 408007

info@aspire-homes.com


Key Features

  • FULL PLANNING for 8 dwellings!
  • 2x 3 bed detached house
  • 4x 2 bed terraced house
  • Main services understood to be available
  • No chain
  • Planning ref: F/YR25/0609/F
  • 2x 3 bed terraced house
  • Land is approx 0.8 ACRE (sts)
  • Walking distance to town centre and park

Share this property

Property Search

Property Search

Share this property